Grua de 10 tones
Visió general

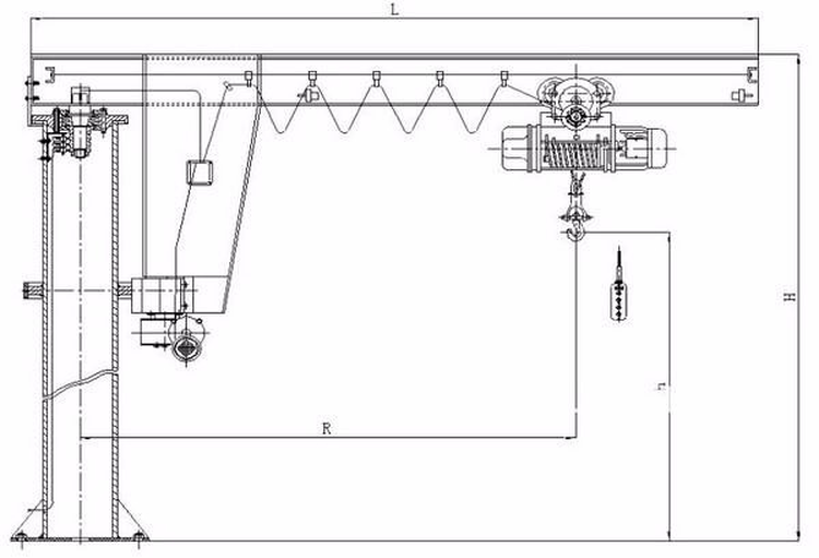
La grua giratòria muntada en columna és un equip d'elevació de velocitat petita i mitjana desenvolupat recentment. Té característiques d'estructura única, funcionament segur i fiable, alta, eficiència, estalvi d'energia, estalvi d'esforç i flexibilitat. Es pot operar en un entorn tridimensional. És superior en els casos d'elevació concentrada i curta distància. S'utilitza àmpliament en diversos llocs per a diversos oficis.
Treball de grua de foc per a intensitat de llum, grua per pal, dispositiu d'accionament de rotació del braç giratori i polipast elèctric, fons de columna a la base de formigó amb cargol d'ancoratge, voladís accionat per reductor de molinet cicloïdal, polipast elèctric a les bigues en voladís com una línia recta. d'esquerra a dreta i aixecant objectes pesats. Grua de foc per a estructura d'acer buida, pes lleuger, gran amplitud, pes d'elevació, econòmica i duradora.
Paràmetre de productes

| ARTICLE | Especificacions | ||||||||
| Capacitat | t | 0.5 | 1 | 2 | 3 | 5 | 10 | 16 | 20 |
| Longitud del braç | m | 1.2~20 | |||||||
| Alçada d'elevació | m | 1~15 | |||||||
| Velocitat d'elevació | m/min | 3.5 / 7 / 8 | |||||||
| Velocitat de desplaçament | m/min | 20 / 30 | |||||||
| Velocitat de rotació | r/min | 0.7 | |||||||
| Angle de gir | grau | 360 graus | |||||||
| Cable d'acer | mm | Ø4.7 | Ø7.7 | Ø11 | Ø13 | Ø15.5 | Ø15.5 | Ø17.5 | Ø22.5 |
| Font d'alimentació | 3-fase, 380v50Hz O segons sigui necessari | ||||||||
Característiques de seguretat
Conjunt complet d'equips de protecció de seguretat: límit de pes, límit de moment, límit d'alçada i límit de gir, fre d'emergència, dispositius de protecció laboral com plataforma de descans i barana.
1.Límit de pes: si el material supera la capacitat, la grua donarà un avís agut per protegir-se.
2. Limitador de moments: seguiment i detecció en temps real de les condicions de treball de la grua, amb la seva pròpia funció de diagnòstic, alarma ràpida d'estat perillós i control de seguretat.
3.Límit d'alçada: controleu la posició extrema més baixa i més alta del ganxo d'elevació.
4.Límit de gir: controla el nombre de girs extrems de gir a l'esquerra ia la dreta.
5.Fren d'emergència: si el personal d'operació es troba amb alguna situació d'emergència, podríem iniciar el sistema de fre d'emergència per protegir el tresor relacionat.
Detalls dels productes





Escenaris d'aplicació

Perfil de la companyia



Etiquetes populars: Grua de 10 tones, fabricants de grues de 10 tones de la Xina, proveïdors, fàbrica
Un parell de
Grua de foc elèctricSegüent
Grua de 3 tonesPotser també t'agrada
Enviar la consulta













